Kontejneri za stanovanje
Jednostavno a kvalitetno rješenje za vaš prostor.Kontejneri za stanovanje se koriste na mnogo načina, Pođemo od tog gdje samo ime kaže stambeni kontejneri koji se koriste kao kontejneri za stanovanje, vikendice od kontejnera, kontejneri kućice, kancelarijski kontejneri, građevinski kontejneri, kontejneri za ostave i slično
Pozovi +38763397911 WhatsApp ili Viber
Uz sve veću popularnost kontejnera za stanovanje, stambene kontejnere, kontejnere vikendice i vikendice kontejnere, ova inovativna rješenja postaju sve češći izbor za one koji traže praktična, moderna i ekonomična rješenja za svoj dom ili odmor. Bez obzira na vaše specifične potrebe i želje, kontejneri za stanovanje i odmor nude prilagodljiva i izdržljiva rješenja koja su savršena za vaš životni prostor.
NARUČI SVOJ KONTEJNER +38763397911 WhatsApp / Viber
Kontejneri za stanovanje: Praktično i moderno rješenje za vaš dom
U potrazi za inovativnim i fleksibilnim rješenjem za vaš dom? Kontejneri za stanovanje su sve popularniji izbor za one koji traže praktično i moderno rješenje za svoj dom. Ovi kontejneri su izrađeni od čeličnih konstrukcija i izoliranih panela, što osigurava izdržljivost i toplinsku izolaciju. Kontejneri za stanovanje mogu se koristiti kao trajni dom ili kao privremeni smještaj za različite namjene, kao što su kancelarije, skladišta, radionice ili čak kao dodatni stan.
Stambeni kontejneri: Prilagodljivo i ekonomično rješenje za životni prostor
Stambeni kontejneri su prilagodljivo i ekonomično rješenje za životni prostor. Ovi kontejneri omogućuju jednostavnu i brzu izgradnju doma, a istovremeno pružaju mogućnost prilagodbe vašim specifičnim potrebama i željama. Stambeni kontejneri su također izdržljivi i otporni na vremenske uvjete, što ih čini idealnim za život u različitim klimatskim uvjetima. Stambeni kontejneri su ekonomičan izbor za one koji traže povoljno rješenje za svoj dom.
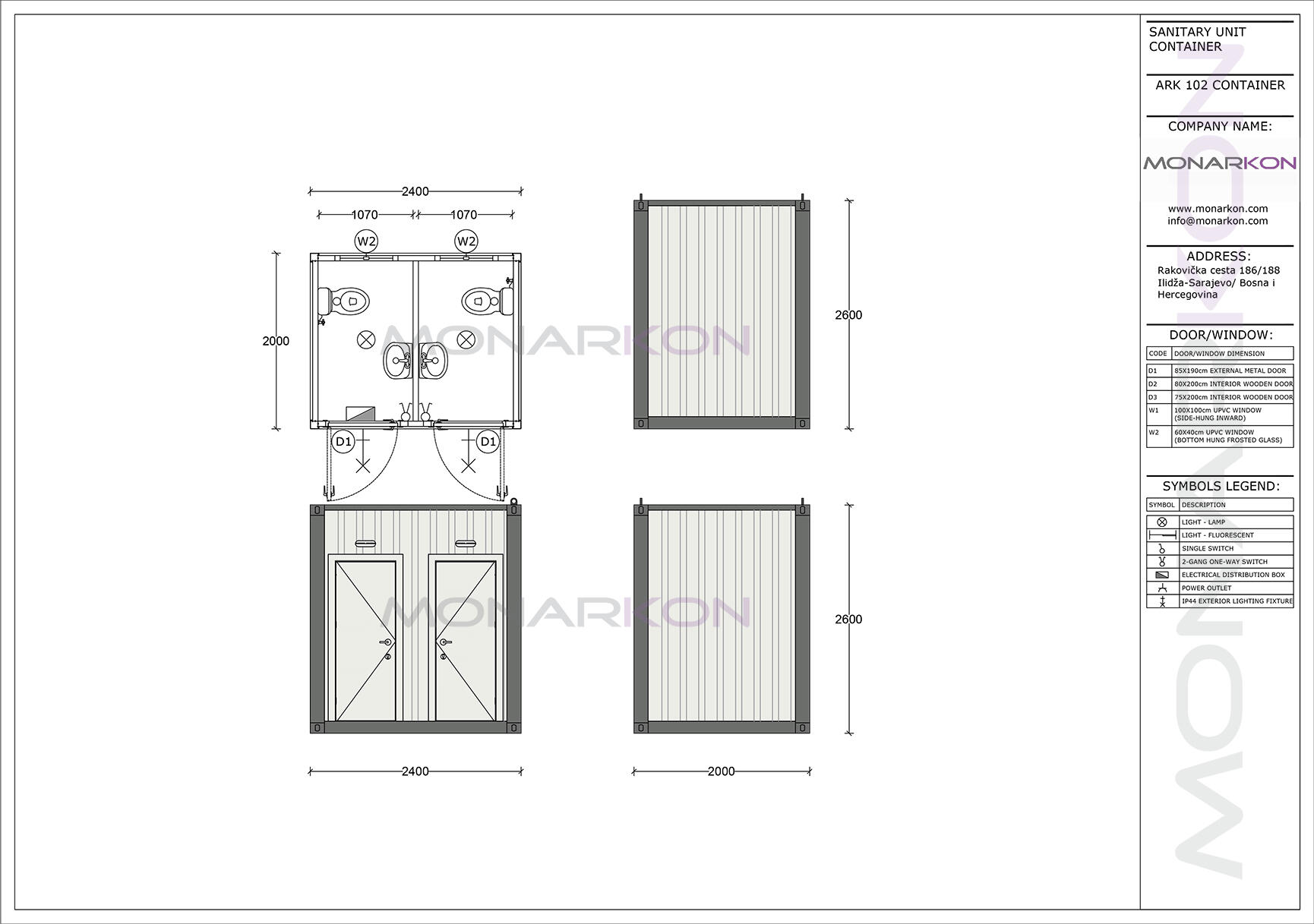
Sanitarni kontejneri
Sanitarni kontejneri su napravljeni kao rješenje za mnoge situacije u kojima se možete naći. Sanitarni Kontejneri su rješenje za građevinske lokacije, vikend lokacije i mnoge druge. Na slikama gore možete vidjeti neke od modela koje nudimo od sanitarnih kontejnera međutim to nije sve možemo raditi i po narudžbi. Kontejneri su novo rješenje za mnogo probleme tako i sanitarni kontejneri NARUČITE VAŠ pozivom na +38763397911 Whats APP/ ViberKlikom na sliku odvara vam se nova stranica gdje možete vidjeti detaljnije slike i dimnezije svakog modela
Isporučeni kontejneri
Module kontejner 501 isporučen. Kontejneri po narudžbi
Module kontejner antracit 6x2.4 isporučen u Hrvatsku. Još jedna želja ispunjena i isporučena. Zato su naši kontejneri po narudžbi rješenje za vas i vaš prostor
Još jedna uspješna isporuka projekta od kontejnera. Kontejner kancelarije na Ilidži
Još jedan uspješno isporučen module projekt, od stambenih kontejnera. Isporučeno je 8 stambenih jedinica sa krovom u Modriču
Još jedna isporuka jednostavnog modela kontejnera sa kupatilom u Stolac
Još jedna specijalna narudžba isporučena. Naš pocinčani kontejner isporučen u Hrvatsku na more za mali market
Još jedan projekt kontejnera za stanovanje završen i isporučen u Njemacku.
Još nešto novo iz naše proizvodnje stambeni kontejneri novih dimenzija. Kontejner dimenzija 6x3. Mala garsonjera u jednom modulu
Modifikovani model kontejnera 401 obložen drvetom
Modifikovani modeli kontejnera 301 i 401 isporučeni obloženi drvetom dimenzije kontejenra 3x2,4 i 4x2,4
Još jedna brza isporuka kontejnera modela 609 sa kupatilom i novim prozorima koje imamo u ponudi
Još jedna specijalna narudžba kontejnera za našeg standardnog kupca, ovog puta model 609 u antracit boji sa roletnama
Antracit kontejner sanitarni model spreman za isporuku u Hrvatsku
Još jedna posebna narudžba kontejnera isporučena u Mostar, staklena površina naprijed
Kombinacija kontejnera rađena po narudžbi sa velikim staklenim površinama isporučeno za Austriju 28.8m2 Naruči svoj +38763397911
Isporučen kancelarijski kontejner u ilijaš po narudžbi sa većim staklenim površinama zbog preglednosti posla koji se obavlja ispred. Naruči svoj +38763397911
Isporuka kontejner vikendice Čevljanovići. Vikendica napravljena po narudžbi za našeg klijenta 28.8m2. Kontejner Vikendica posjeduje spavaću sobu, kupatilo te dnevni boravak sa kuhinjom što je sasvim dovoljno za uživanje u slobodnom vremenu. NARUČI SVOJU VIKENDICU INFORMIŠI SE +38763397911
Napravljen i isporučen sanitarni kontejner za Hrvatsku. Sanitarni kontejner se sastoji iz dva dijela jedan dio za ugrađenim pisoarima je predviđen za muškarce dok dio bez njih samo sa odjeljcima sa šoljama je predviđen za žene. Naruči svoj +38763397911
Kontejneri za stanovanje su isporučili jednu zanimljivu vikend kombinaciju u Austriju
Isporučen kancelarijski kontejner kancelarijski kontejner za Vareš BiH. Pogledajte video
Kancelarijski kontejneri




Kontejner vikedica Jazz















































































